- Хотите установить оборудование, которое будет эксплуатироваться на улице?
- Необходимо обеспечить надёжную защиту технологических агрегатов от атмосферных воздействий?
- Строить отдельное здание дорого и неэффективно?
Оптимальным выходом из данной ситуации станет специализированный контейнер. ТОО «Вильсон Казахстан» производит и реализует защитные конструкции для следующего оборудования:
- дизель-генераторы;
- трансформаторы;
- распределительные устройства;
- источники бесперебойного питания;
- компрессорная, телекоммуникационная и другая техника.

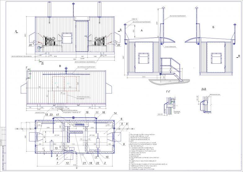
Схема размещения двух дизельных генераторов в одном контейнере
Преимущества специализированных контейнеров от ТОО «Вильсон Казахстан»
Каждый контейнер — это жёсткая сварная конструкция. Она специально спроектирована для того, чтобы эксплуатировать установленные агрегаты было удобно и безопасно. При этом:

- обеспечивается надёжная защита от неблагоприятных климатических воздействий;
- гарантируется сохранность при транспортировке;
- геометрические параметры контейнера могут меняться в зависимости от габаритов и веса оборудования;
- цельнометаллический каркас имеет антивандальное исполнение.
Для изготовления контейнера используются стальные профилированные листы толщиной 1,5 мм. Стены и потолок обшиваются оцинкованным металлом с полимерным покрытием. Осуществляется теплоизоляция всех внутренних поверхностей (толщина 50–100 мм). Пол покрывается рифлёным металлическим листом (4 мм). При окраске используются только высококачественные эмали европейских производителей. Цвет обязательно согласовывается с заказчиком.
Устанавливаются жёсткие металлические решётки, которые обеспечивают нормальную работу дизель-генераторной станции. Размеры этих конструкций зависят от мощности оборудования. Для сохранения тепла внутри специализированного контейнера размещают автоматические жалюзи.

Конструкция оснащается утеплённой железной дверью с замком. Кроме стандартных решений мы предлагаем контейнеры с повышенным шумопоглощением. Они позволят эксплуатировать оборудование вблизи жилых зданий и сооружений.
Все системы и элементы (двери, окна, вентиляция, обогрев и т.д.) спроектированы в чётком соответствии с назначением контейнера. При изготовлении специалисты ТОО «Вильсон Казахстан» неукоснительно соблюдают действующие правила и нормативы.
Внутренняя температура должна быть оптимальной. Это обеспечит правильную работу установленного оборудования. Для успешного выполнения данной задачи предусмотрены системы вентиляции, внутреннего обогрева, вывода отработанных газов.
Специализированный контейнер оснащается пожарно-охранной сигнализацией. Она срабатывает в случае проникновения посторонних лиц и при критическом повышении температуры. Кроме этого, контейнер имеет как основное, так и резервное внутреннее освещение. Энергия поступает от аккумуляторных батарей и внешней электросети.

Для повышения безопасности контейнер оборудуют современными системами автоматики. Они способны функционировать без участия человека, обеспечивая автономную работу различных устройств. Речь идёт о системе поддержания заданной температуры, автоматическом пожаротушении и вентиляции.
Все эти функции позволяют уберечь дорогостоящие генераторные станции от механических воздействий, атмосферных осадков, перепадов температур, аварийных ситуаций. Специализированный контейнер — это отличное решение, которое даст возможность разместить технологическое оборудование в любом месте.